Te koop

Cultuurgrond (reguliere pacht) te Balk

Lorbuorren te Balk | Vraagprijs: VRAAGPRIJS OP AANVRAAG
Status: Te koop Oppervlakte: 21.64.80 hectare
Bouwjaar: n.v.t Soort object: Cultuurgrond (belegging)
Terug naar aanbod overzicht

Namens opdrachtgever te koop aangeboden:

Kavel regulier verpachte cultuurgrond te Balk 

Gemeente Sectie Nummer Oppervlakte
Balk L 485 02.94.60 ha
Balk L 486 03.96.60 ha
Balk L 487 03.37.50 ha
Balk L 489 03.74.10 ha
Balk L 490 04.30.20 ha
Balk L 1307 03.31.80 ha
Totaal: 21.64.80 ha

 

Kenmerken

Ruim opgezet blok cultuurgrond met goede ontsluitingen aan de openbare verharde weg Lorbuorren en goede interne ontsluitingen tussen de percelen onderling. Betreft veldpodzolgrond bestaande uit lemig zand met een kleidek (kHn21) overgaande in een moerige podzolgrond met kleidek (grondsoort mestwet zand en klei). De kavel heeft een voldoende waterhuishouding. Percelen zijn overwegend gebruikt als grasland en deels voor maïsbouw. Het geheel verkeert in een goede cultuurtoestand voor de hedendaagse landbouw.

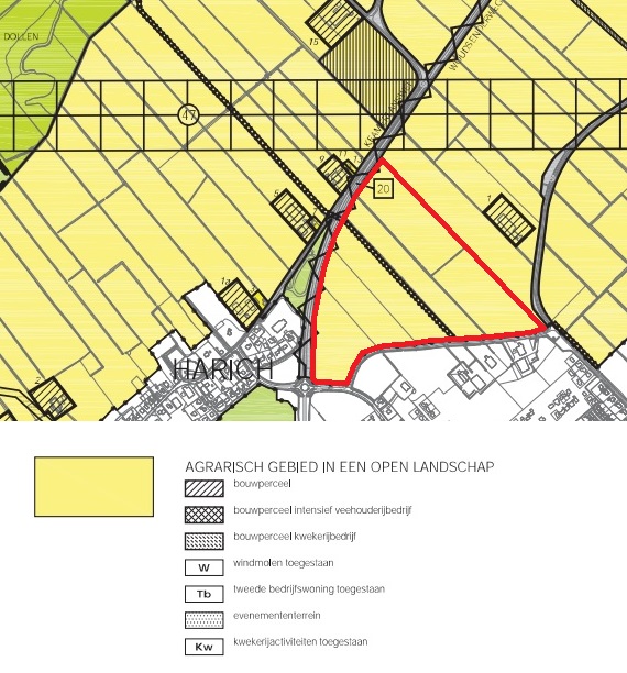
Bestemming

De bestemming is agrarisch gebied in een open landschap.

Sinds 1 januari 2024 is het Omgevingsplan van kracht. Het omgevingsplan bevat alle regels over de fysieke leefomgeving die de gemeente stelt binnen haar grondgebied. Per gemeente is er één omgevingsplan. Raadpleeg voor meer informatie de gemeente. De gemeente De Fryske Marren is thans bezig met een nieuw Omgevingsplan Buitengebied Zuidwest (conceptplan verwacht in Q3 2026).

Pacht

De percelen worden op basis van reguliere pacht gepacht door een melkveehouderij, als onderdeel van de huiskavel.

Geïnteresseerden kunnen voor meer informatie over de pachtprijs en pachtvoorwaarden contact opnemen met de rentmeester.

Dit betreft een beleggingsobject. Koper dient vooraf schriftelijk te verklaren dat hij een ‘veilige verpachter’ is in de zin van artikel 7:380 lid 1e BW.

 

Overge mededelingen

Jachtrecht:

het jachtrecht is verhuurd t/m 31 december 2025

Herinrichtingsrente:

niet van toepassing

Bodemverontreiniging:

Voor zover bekend zijn de percelen niet meer vervuild dan op basis van het agrarisch gebruik te verwachten is. De verkoper heeft de percelen zelf nooit gebruikt en kan koper daarom slechts beperkt informeren over de feitelijke staat van de percelen.

Zakelijke rechten:

486 – Zakelijk recht als bedoeld in artikel 5, lid 3, onder b, van de Belemmeringenwet Privaatrecht op gedeelte van perceel.

 

Informatie

Voor nadere inlichtingen verzoeken wij u contact op te nemen met:

Van Eysinga & Oostra c.s. rentmeesters en juristen

De heer D. Kooistra

Hegedyk 9, 8601 ZR Sneek

tel. 0515-238700

Email: Kooistra@vaneysinga-oostra.nl

 

Aan de inlichtingen, verstrekt in deze publicatie, kunnen geen rechten worden ontleend. Wijzigingen zijn voorbehouden.

Foto's
Contactpersoon
Ing. D. Kooistra RT Rentmeester en taxateur Stuur een email (0515) 23 87 00
Bekijk mijn profiel
Vastgoed Locatie
Share This